без комісії
пр. Карла Маркса — Здається торгівельний майданчик
(г. Кривой Рог, Центрально-Городской район)
600 грн. за кв.м.
Загальна площа: 55 кв.м
Поверх: 1
К-ть поверхів: 1
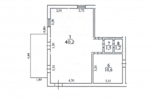
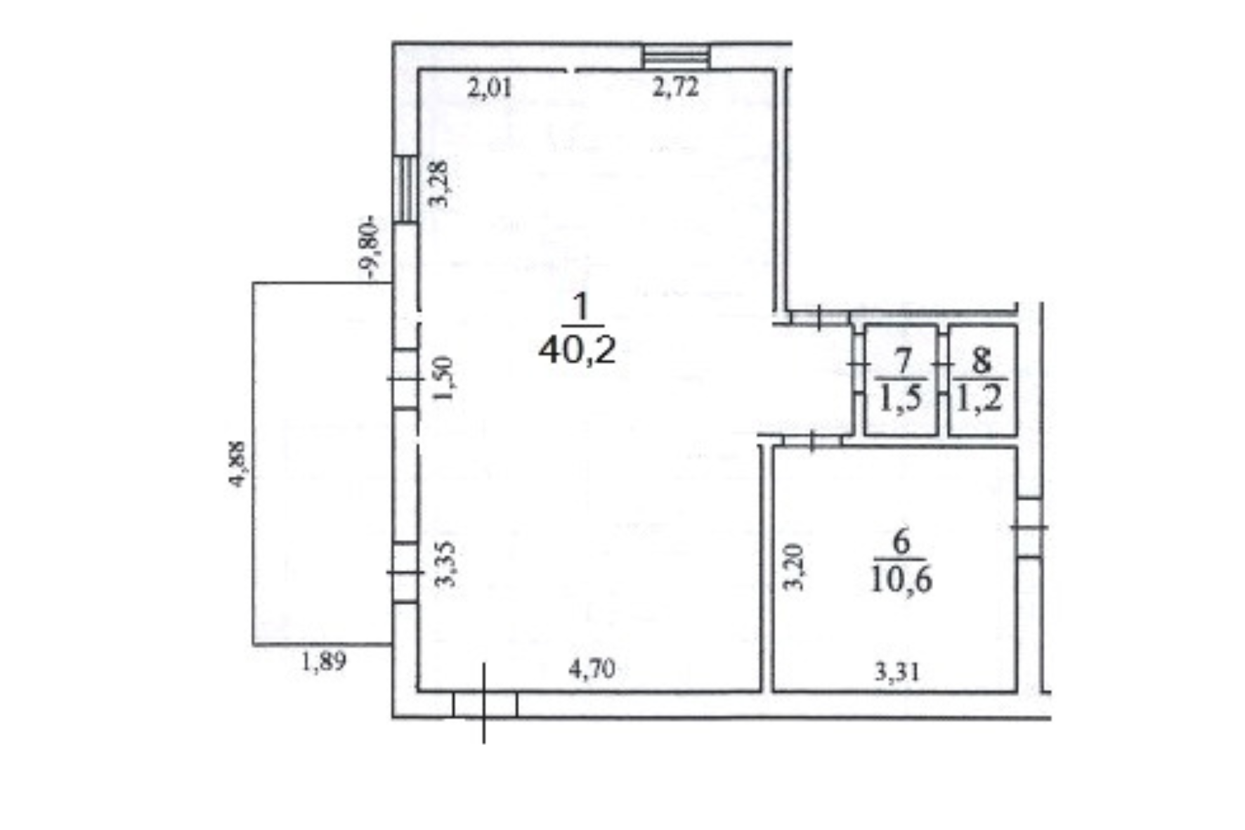
Оренда приміщення, р-н Центрально Міський, пр. Поштовий Приміщення знахдиться в центрі головної вулиці міста, напроти Театру Т.Шевченка. Технічні характеристики: 55кв.м. - торгова площа 40кв.м. Планування об’єкту: Один торговий зал, центральний вхід з площі та загрузочний вхід зі сторони двору. Комунікації: - електроенергія 50кВт; - газопостачання; - водопостачання та стоки; - сан.вузол. Логістична розв’язка: проспект Поштовий – це культурний та діловий центр міста, популярне місце для відпочинку городян. Особливості об’єкту: в приміщенні зроблений демонтаж, ремонтні роботи на розсуд Орендаря. Оренда 600грн/кв.м. + коммун. платежі. За будь-якими питаннями за цією або схожими пропозиціями звертайтесь за номером телефону, де вам відповість наш ріелтор Наталія - 0676961651 Підписуйтесь на наш Instagram та слідкуйте за оновленнями - @ancredokr З повагою, команда Credo!
Оновлено: 1 квітня 2024
Розміщено: 12 березня 2024
Вам также могут подойти
Оновлено: 12 вересня
Розміщено: 6 травня
площа 207, поверх 1/4
г. Кривой Рог, ул. Янова
350 грн. за кв.м.
Літвинова Ірина Вікторівна
Оренда магазину в історично-діловому центрі міста - Центрально Міський район - Вул. Комерційна, 3 Про об’єкт: - 1 поверх 4 -х поверхового житлового будинку - Окремий вхід - Перед приміщенням…
Детальніше
Оновлено: 21 серпня
Розміщено: 21 серпня
площа 100, поверх 1/2
г. Кривой Рог, ул. Украинская
375 грн. за кв.м.
Літвинова Ірина Вікторівна
Оренда магазину вул. Українська - м.Кривий Ріг - Центрально-Міський район - окрема розташована двоповерхова будівля - "червона лінія" Харектиристика: - перший поверх, окрема вхідна группа - загальна площа - 100…
Детальніше
Оновлено: 9 жовтня
Розміщено: 29 березня 2024
площа 260, поверх 1/9
г. Кривой Рог, пр. Університетський
350 грн. за кв.м.
Літвинова Ірина Вікторівна
Оренда торгового приміщення пр. Університетський - Довгинцівський район Технічні характеристики: - перший поверх 9-ти поверхового житлового будинку - "червона лінія" - в приміщенні ведуться ремонтні роботи Планування об’єкту: - загальна…
Детальніше
Коментарі