Вхід на сайт

Ел. пошта:
Пароль:

Реєстрація на сайті

Призвіще: Область:
Ім'я: Населений пункт:
    По батькові: Номер телефону:
    Ел. пошта: Компанія:
      Пароль: Посада:
      Повторіть пароль: Рік початку роботи:
      Фото:
      З правилами розміщення об'єктів погоджуюсь

      Забули пароль?

      Вкажіть ел. пошту — ми надішлемо Вам новий пароль для входу
      Ел. пошта:

      Проблема на сайті

      Закрити
      Ваш e-mail:
      (необов'язково)
      Розкажіть нам, що сталось

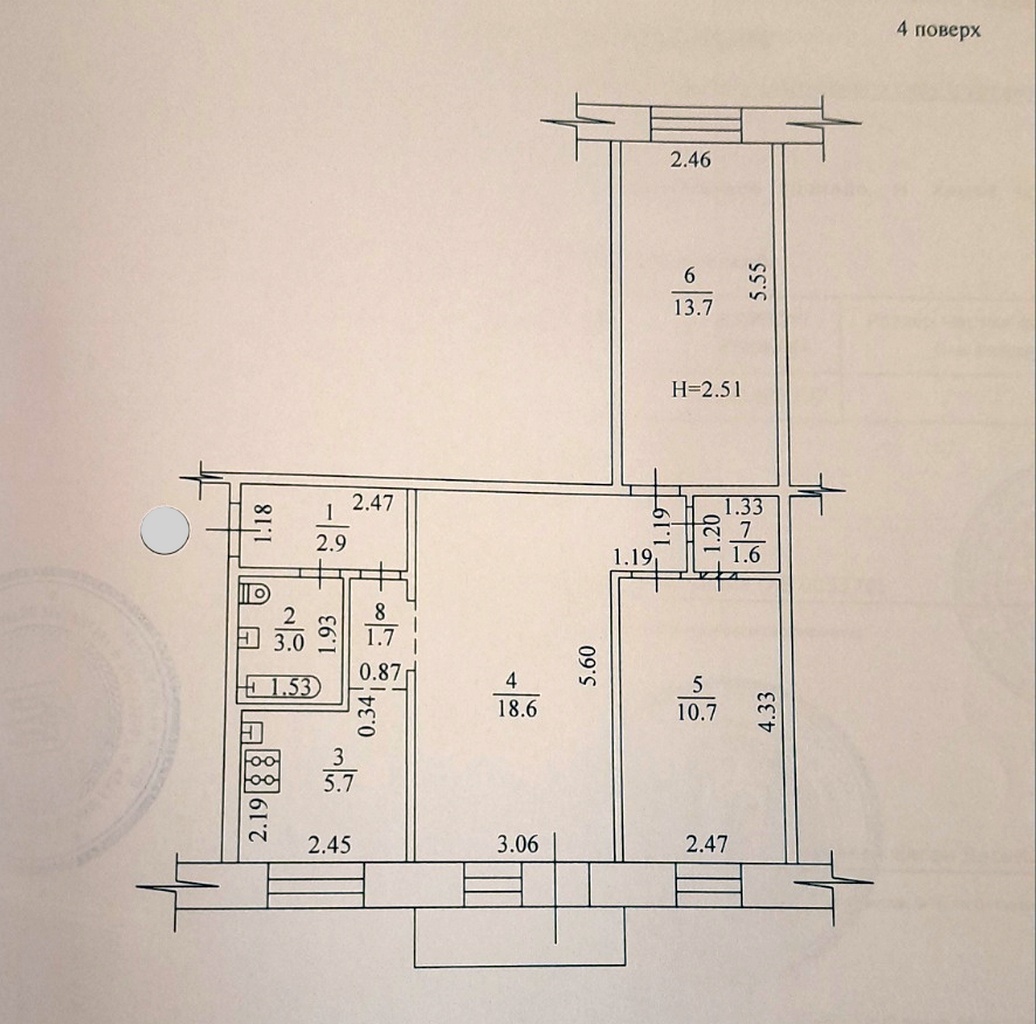
      пер. Танкопия, 24 — Продається квартира

      (г. Харьков, Коминтерновский район)

      34000 $

      Загальна площа: 60 кв.м

      Жила площа: 43 кв.м

      Площа кухні: 6 кв.м

      Кімнат: 3

      Поверх: 4

      К-ть поверхів: 5

      Ексклюзивна пропозиція. Пропонуємо купити трикімнатну квартиру по вулиці Танкопія, розташована на четвертому поверсі в середині будинку, тепла. У квартирі гарний житловий стан, поміняно вікна, у двох кімнатах батареї, стояки, сан вузол підготовлений до плитки. Поруч із будинком знаходяться: садок, школа, гаражний кооператив, зупинка, АТБ, парк. До метро Палац спорту 15 хвилин пішки.

      Надіслати скаргу

      Закрити
      Поскаржитися на об'єкт «пер. Танкопия, 24 (г. Харьков, Коминтерновский район)»
      Ваш коментар:(Необов'язково)
      Ваша скарга буде надіслана ріелтору, що розмістив об'єкт, а також адміністрації сайту АФНУ.
      Ваше ім'я:
      (Обов'язково)
      Ваш e-mail для відповіді:
      (Обов'язково)

      Вам также могут подойти

      пр. Юрия Гагарина, 41а (г. Харьков, Коминтерновский район) - Продається квартира, 28000 $ - АФНУ

      Оновлено: 17 березня

      Розміщено: 19 січня

      Продається квартира

      1 кімн., площа 33/16/7, поверх 8/9

      г. Харьков, пр. Юрия Гагарина, 41а

      28000 $

      Золотько Анна Владимировна

      Агент по продаже недвижимости (VALION Київ, Харків, Одеса, Міколаїв, Львів, Івано-Франківськ, Ужгород, Полтава, Бориспіль, Ірпінь, Вишгород)

      Ексклюзивна пропозиція. Продається затишна 1-кімнатна квартира у зручному районі Харкова. Чудовий варіант як для проживання, так і для здачі в оренду.
      Аерокосмічний проспект біля станції метро Спортивна, Метробудівників та Левада.…

      Детальніше

      Полтавський шлях, 186 (г. Харьков, Ленинский район) - Продається квартира в новобудові, 32000 $ - АФНУ

      Оновлено: 17 березня

      Розміщено: 15 червня 2023

      Продається квартира в новобудові

      1 кімн., площа 42/17/12, поверх 6/16

      г. Харьков, Полтавський шлях, 186

      32000 $

      Золотько Анна Владимировна

      Агент по продаже недвижимости (VALION Київ, Харків, Одеса, Міколаїв, Львів, Івано-Франківськ, Ужгород, Полтава, Бориспіль, Ірпінь, Вишгород)

      Пропонуємо купити однокімнатну квартиру в новобудові ЖК "Казка" вулиця Полтавський Шлях 186, будівельна адреса 16. Будинок цегляний із зовнішнім утепленням стін. Квартира знаходиться на 6/16 поверсі. Загальна площа квартири –…

      Детальніше

      бул. Сергея Грицевца, 50 (г. Харьков, Орджоникидзевский район) - Продається квартира, 35000 $ - АФНУ

      Оновлено: 17 березня

      Розміщено: 24 березня 2024

      Продається квартира

      3 кімн., площа 69/41/8, поверх 8/9

      г. Харьков, бул. Сергея Грицевца, 50

      35000 $

      Золотько Анна Владимировна

      Агент по продаже недвижимости (VALION Київ, Харків, Одеса, Міколаїв, Львів, Івано-Франківськ, Ужгород, Полтава, Бориспіль, Ірпінь, Вишгород)

      Ексклюзивна пропозиція. Пропонуємо купити 3-к квартиру покращеного планування вулиця 92-ї бригади (Грицевця).
      Велика кухня та просторі окремі кімнати, лоджія 7м2.
      Квартира дуже тепла, житловий стан.
      Поряд є все необхідне для…

      Детальніше

      Коментарі