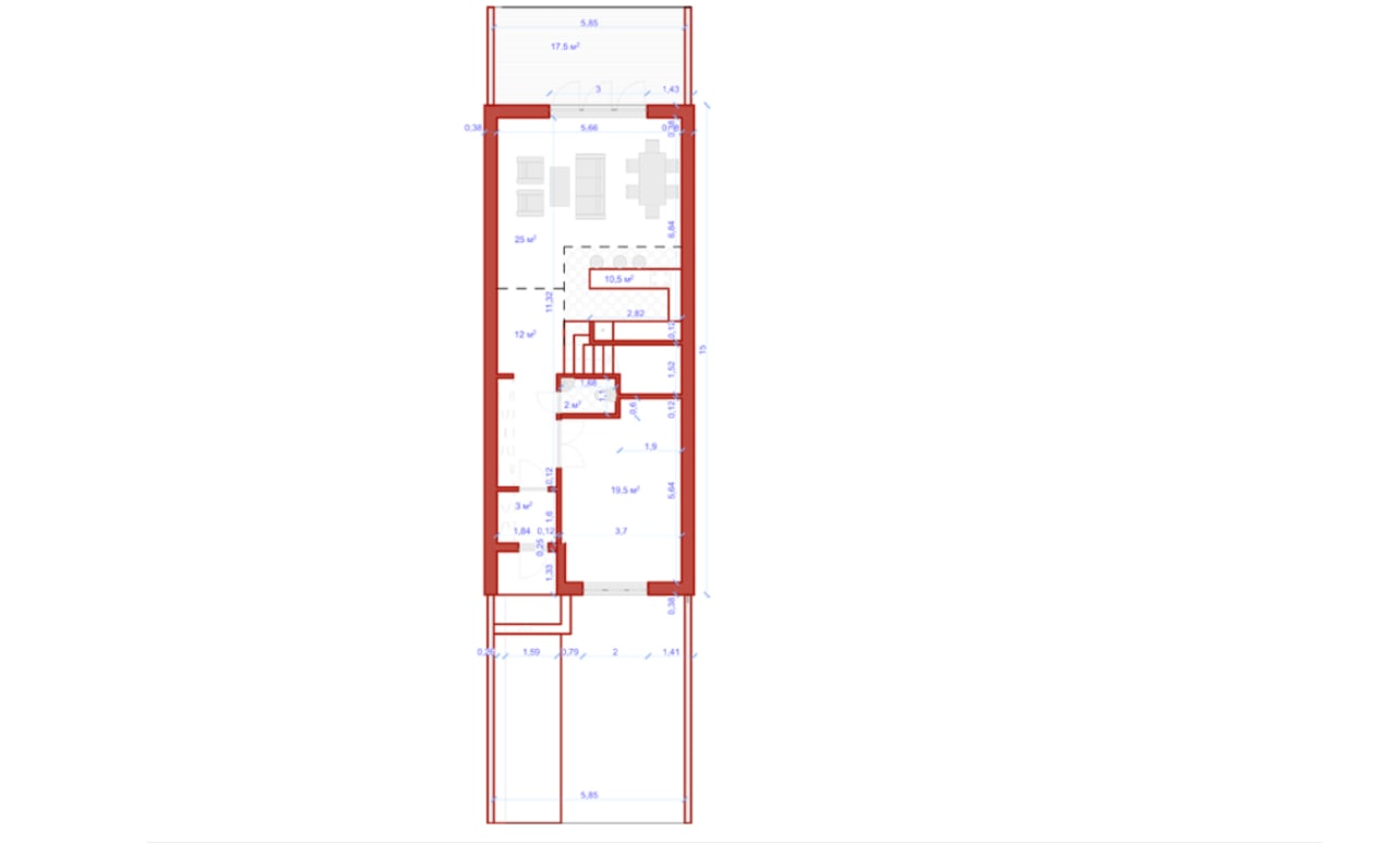
Площа: 142,6 м2, ділянка: 0,0150 га. Будинок відрізняється продуманим інтер’єром: три балкони, високі стелі та панорамні вікна із чудовим краєвидом на місто. Є подвір’я та вільна прибудинкова зона, яка засаджується зеленим газоном, чагарниками і деревами. Котеджі забезпечені безперервною подачею води, газу та електроенергії.
Оснащені відкритою терасою – це повноцінний третій поверх під відкритим небом. На терасі можна створювати лаунж-зону для відпочинку, занять спортом, проведення свят чи інших заходів. Важливо: У кожному будинку знаходиться внутрішня бетонна перегородка. Вона створює усі умови затишку для уникнення шуму із сусідніх будинків. Будинки здаються із поштукатуреними стінами. В технології будівництва не використовується матеріал дерево.