Вхід на сайт

Ел. пошта:
Пароль:

Реєстрація на сайті

Призвіще: Область:
Ім'я: Населений пункт:
    По батькові: Номер телефону:
    Ел. пошта: Компанія:
      Пароль: Посада:
      Повторіть пароль: Рік початку роботи:
      Фото:
      З правилами розміщення об'єктів погоджуюсь

      Забули пароль?

      Вкажіть ел. пошту — ми надішлемо Вам новий пароль для входу
      Ел. пошта:

      Проблема на сайті

      Закрити
      Ваш e-mail:
      (необов'язково)
      Розкажіть нам, що сталось

      без комісії Проспект Центральный — Продається торгівельний майданчик

      (г. Николаев, Заводской район)

      2100000 $

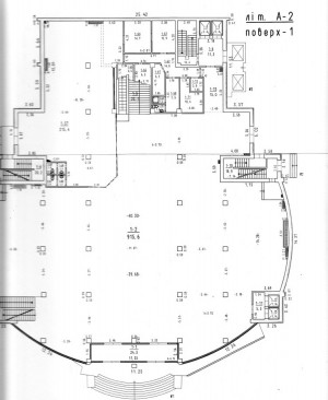
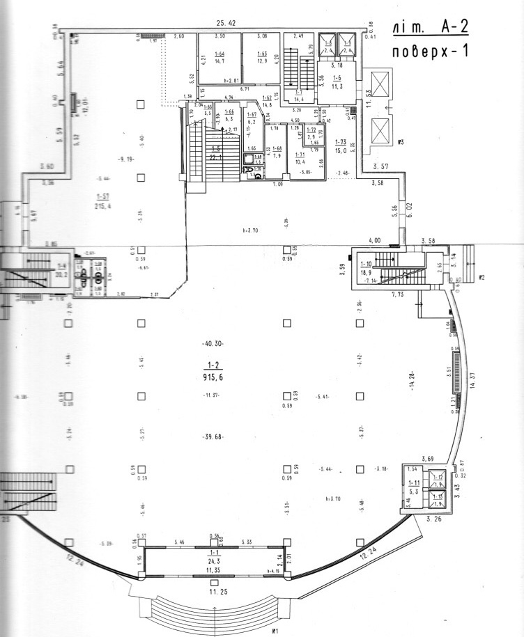
      Загальна площа: 4072 кв.м

      К-ть поверхів: 2

      Продаю нежилой объект - супермаркет, расположенный проспект Центральный - Генерала Карпенко.
      Здание из 2-х этажей с подвалом ( трёхуровневое).
      Площадь застройки - 1553.8 м2
      Общая площадь - 4072.2 м2
      Основная площадь. - 3339.7 м2
      Площадь служебных помещений - 732.5
      Материал стен: кирпич, ж/б колонны.
      Год постройки 2008, процент износа 0%.
      Есть электрика, водопровод, канализация, газопровод.
      Здание готово к эксплуатации.
      Есть два грузовых лифта, эскалатор, рампа погрузо-разгрузочная, в здании приточно-вятяжная вентиляция с рекуперацией воздуха.
      Удобная транспортная развязка, проходное место, есть парковка.

      Єрмолов Олег

      Єрмолов Олег В'ячеславович

      Директор, засновник (Юрінформ АН)

      +380 (63) 774-57... Показати номер телефона +380 (63) 774-57-09, +380 (50) 753-25-48, +380 (67) 115-46-35

      Поскаржитися на об'єкт

      Надіслати скаргу

      Закрити
      Поскаржитися на об'єкт «Проспект Центральный (г. Николаев, Заводской район)»
      Ваш коментар:(Необов'язково)
      Ваша скарга буде надіслана ріелтору, що розмістив об'єкт, а також адміністрації сайту АФНУ.
      Ваше ім'я:
      (Обов'язково)
      Ваш e-mail для відповіді:
      (Обов'язково)

      Коментарі