Вхід на сайт

Ел. пошта:
Пароль:

Реєстрація на сайті

Призвіще: Область:
Ім'я: Населений пункт:
    По батькові: Номер телефону:
    Ел. пошта: Компанія:
      Пароль: Посада:
      Повторіть пароль: Рік початку роботи:
      Фото:
      З правилами розміщення об'єктів погоджуюсь

      Забули пароль?

      Вкажіть ел. пошту — ми надішлемо Вам новий пароль для входу
      Ел. пошта:

      Проблема на сайті

      Закрити
      Ваш e-mail:
      (необов'язково)
      Розкажіть нам, що сталось

      ул. Ватутина — Продається квартира

      (г. Полтава, Киевский район)

      88000 $

      Загальна площа: 70 кв.м

      Жила площа: 42 кв.м

      Площа кухні: 11 кв.м

      Кімнат: 3

      Поверх: 2

      К-ть поверхів: 7

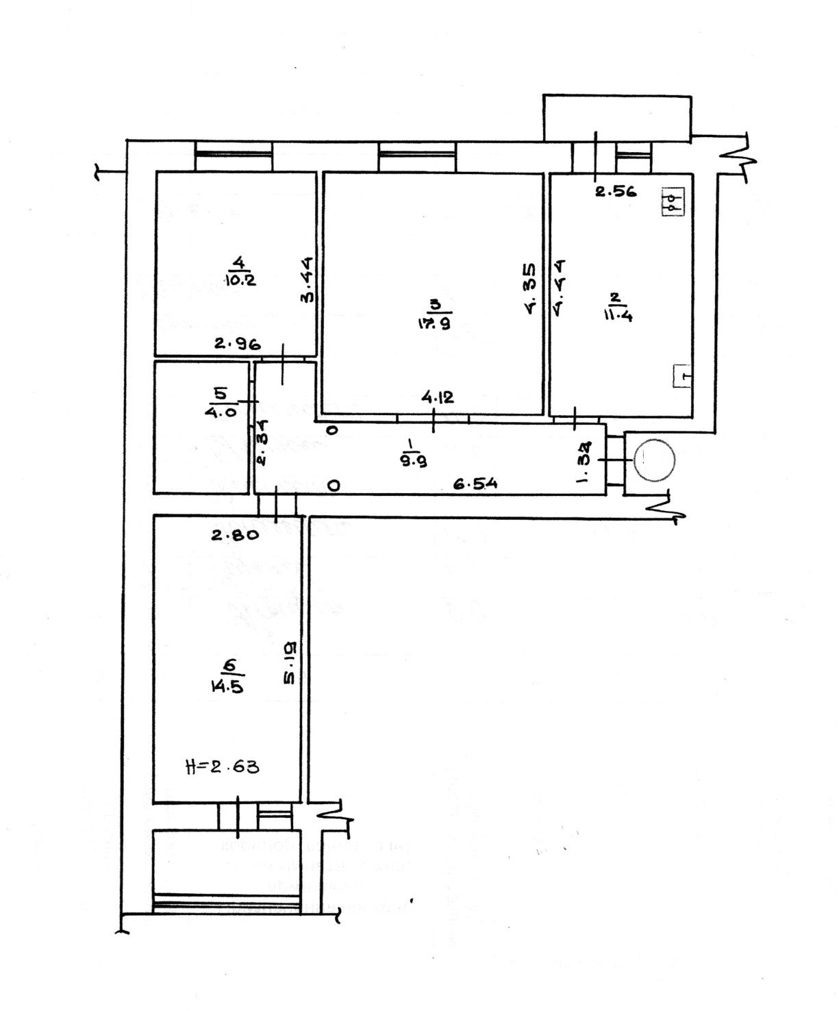
      Продаж 3 кімнатної квартири (індивідуальний проект) в Центрі Полтави, поряд з школою №38, по вул. Ватутіна, 9/68
      Характеристика квартири:
      - Загальна площа - 70,1 кв.м;
      - Житлова площа – 42,6 кв.м;
      - кімната-17,9 кв.м;
      - кімната-14,5 кв.м;
      - кімната-10,2 кв.м
      - Кухня – 11,4 кв.м;
      - Поверх – 2/7 пов. цегляного будинку
      - Висота стель Н= 2, 65 м;
      - Балкон та лоджія засклені
      комунікації:
      - централізовані;
      - підігрів води - газова колонка,
      - лічильники: світло, газ, холодне та гаряче водопостачання, опалення(на підїзд)
      стан:
      - вікна м/п
      - ремонту 5-7 років

      Надіслати скаргу

      Закрити
      Поскаржитися на об'єкт «ул. Ватутина (г. Полтава, Киевский район)»
      Ваш коментар:(Необов'язково)
      Ваша скарга буде надіслана ріелтору, що розмістив об'єкт, а також адміністрації сайту АФНУ.
      Ваше ім'я:
      (Обов'язково)
      Ваш e-mail для відповіді:
      (Обов'язково)

      Коментарі