без комісії
ул. Центральная, 50 — Продається будинок
(г. Киев, Дарницкий район)
180000 $
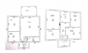
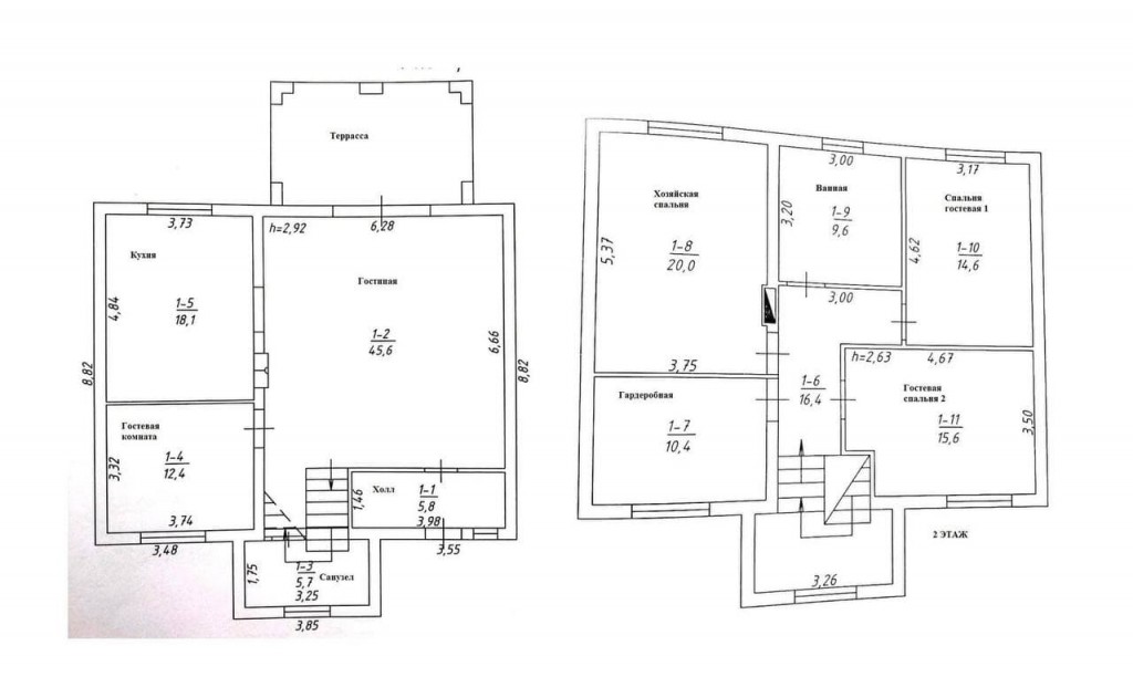
Загальна площа: 174 кв.м
Площа ділянки: 5.1 сот
Кімнат: 7
К-ть поверхів: 2
Без риелторской комиссии. Продажа отличного дома на берегу Днепра в шикарном месте на Осокорках . Рядом : остановка общественного транспорта (300метров), супермаркет "ФОРА", в 200 метрах р. Днепр, пляж с зоной отдыха, бассейны( взрослый и детский), бани, беседки, спортивный комплекс, ресторан, прогулочная зона, современная детская площадка, облагороженное зарыбленное озеро, ледовая арена, футбольное поле, теннисные корты, детский сад "Дочки и сыночки", клиника Адонис, и т.д.- все это в 2 минутах ходьбы от дома.
Вы хотите больше времени проводить с близкими? Ищите 101 способ занять детей? Мечтаете о собственном огороде или саде? Вы любите спорт на свежем воздухе? Вашим питомцам скучно в квартире? Вы любите рыбачить? Тогда самое время задуматься о покупке собственного дома! Свой дом, что может быть лучше?
Идеальное место для комфортного проживания и отдыха, с развитой инфраструктурой и полным комплексом сферы услуг. Место, в котором можно насладиться природой, отдохнуть от городской суеты.
Дарницкий район, метро Славутич 5 км К дому 8 минут на машине от м. Славутич, 15 минут на общественном транспорте. Красивая облагороженная улица на 7 домов с выходом к озеру и реке Днепр. Полная безопасность, освещение улицы, охрана.
Дом новый, качественно построен, очень теплый, с идеальной планировкой, ремонт 2019г. Площадь : 174 м2 (вся площадь рациональна, без скошенных стен, чердаков и подвалов) 2 этажа, Н -3.2, и 2.75 Участок: 5.1 соток, (возможно увеличение) Цена: 180 000 $ без оплаты комиссии риэлтору.
ПЛАН: 1- этаж : кухня-столовая с полным комплектом бытовой техники, гостиная ( 46м2) с камином, панорамными окнами и выходом на крытую террасу, гостевой санузел, гостевая комната, подсобное помещение, гардеробная, холл. 2- этаж : 3 полноценные спальни, санузел, гардеробная комната (11м2).
ТЕХНОЛОГИЯ СТРОИТЕЛЬСТВА, КОММУНИКАЦИИ : Ленточный фундамент 1.5 м, перекрытия-плиты монолит, материал постройки газоблок, крыша –металлочерепица. Скважина 76 метров, система очистки воды на весь дом, 2 септика по 4 куба , электричество -горсеть 15 кВт (3 фазы, 380 вольт), оптоволоконный интернет, кабельное телевиденье , Дровяной камин (первый этаж можно отапливать камином)/ Водяной подогрев пола 1 этаж.