без комісії
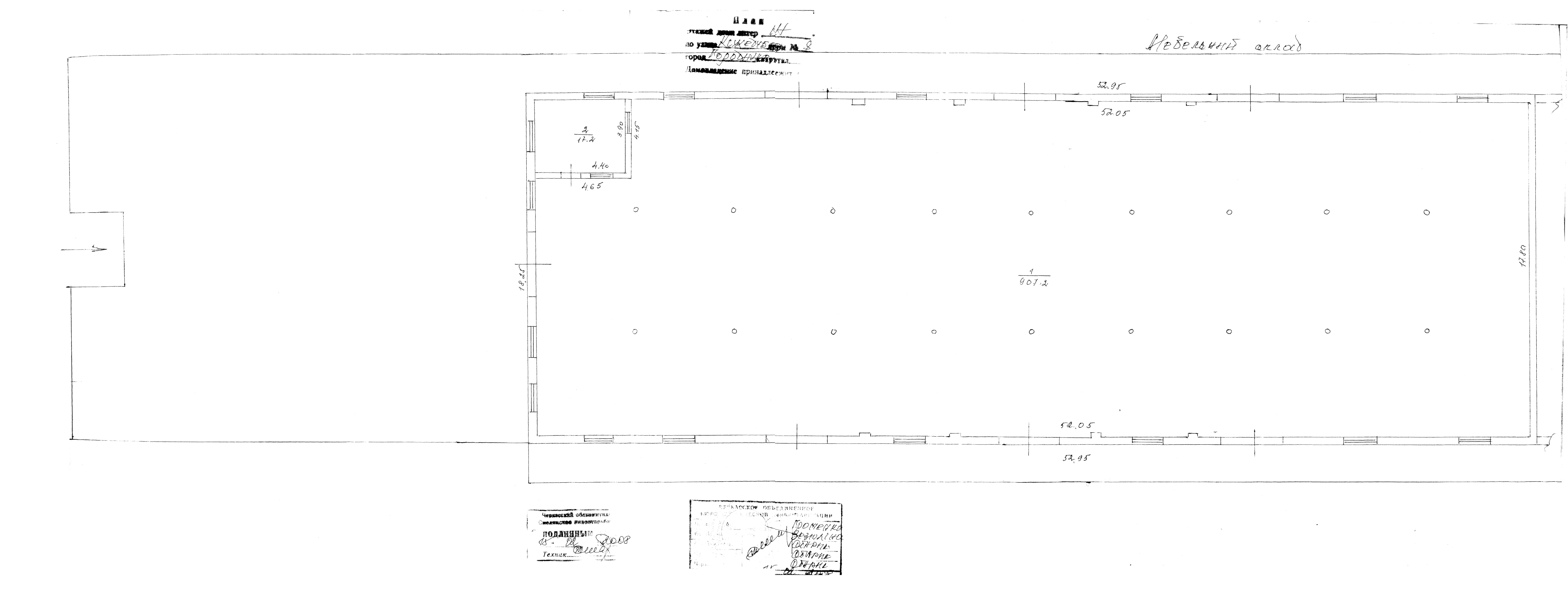
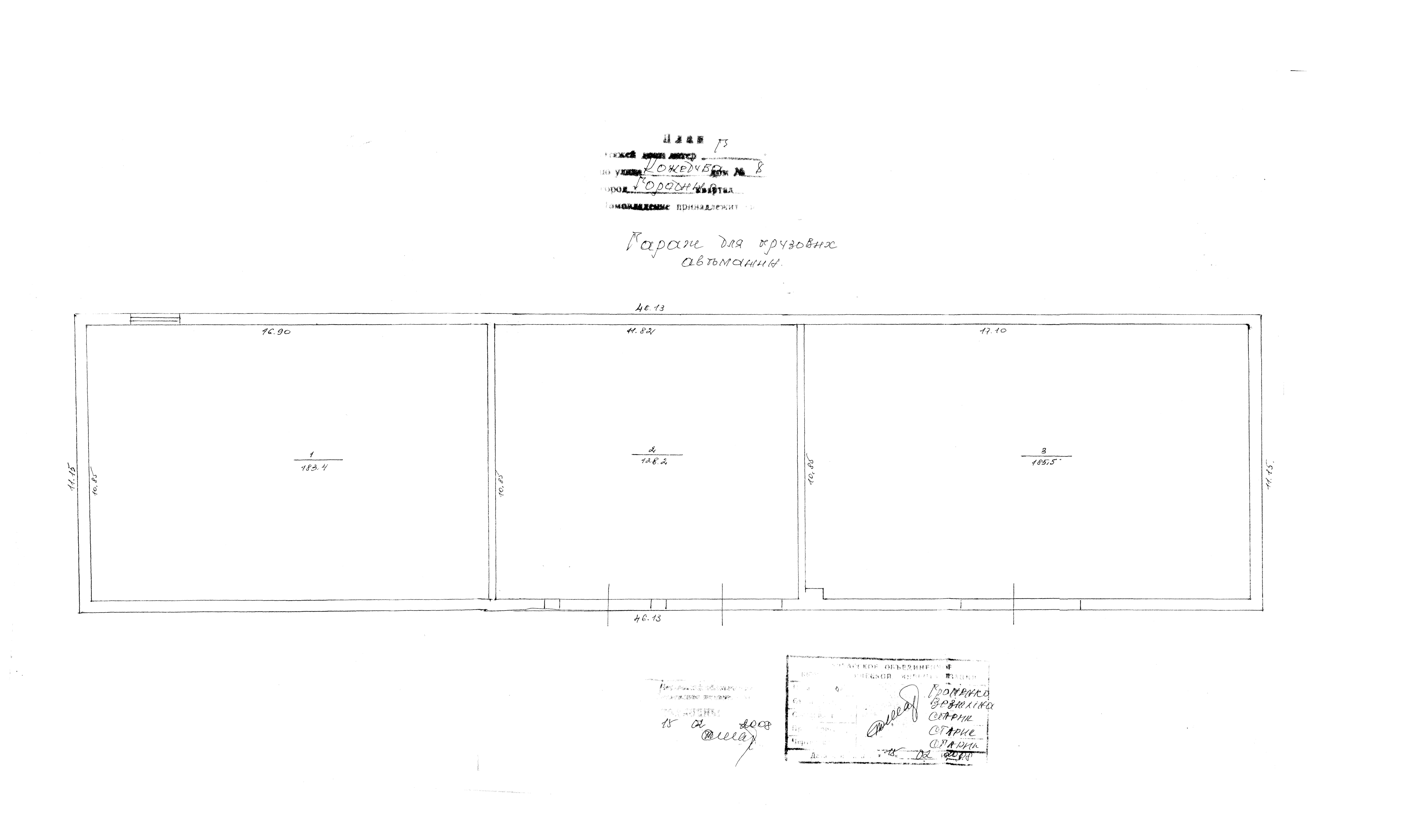
ул. Кожедуба, 8 — Продається промисловість
(г. Городище, Городищенский район)
150000 $
Загальна площа: 3600 кв.м
Продам базу в Городище с ж.д. путями под элеватор. Недалеко от железнодорожного вокзала в Городище продается производственная база - комплекс строений общей площадью 3 600 кв.м. Территория базы 3,5 га ограждена, частично заасфальтирована и охраняется. На площадку заходит собственная исправная и рабочая железнодорожная ветка длинной 375 метров. Своя трансформаторная подстанция имеет мощность 80 квт, есть возможность увеличения. База может быть использована для размещения складов, производства, строительства элеватора.