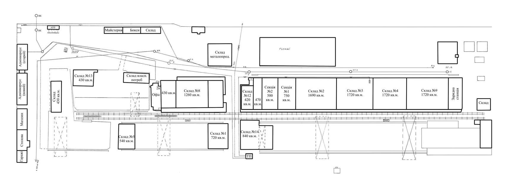
Главный складской комплекс общей площадью 9 000 кв.м. Железобетонное помещение с авто и ж/д рампой Разделено на секции кирпичной кладкой Высота потолков в нижней точке 6 м На территории есть техническая вода Подключение до 650 кВт есть возможным при условии замены трансформаторов и силовых кабелей Земельный участок площадью 10,5 га