Вхід на сайт

Ел. пошта:
Пароль:

Реєстрація на сайті

Призвіще: Область:
Ім'я: Населений пункт:
    По батькові: Номер телефону:
    Ел. пошта: Компанія:
      Пароль: Посада:
      Повторіть пароль: Рік початку роботи:
      Фото:
      З правилами розміщення об'єктів погоджуюсь

      Забули пароль?

      Вкажіть ел. пошту — ми надішлемо Вам новий пароль для входу
      Ел. пошта:

      Проблема на сайті

      Закрити
      Ваш e-mail:
      (необов'язково)
      Розкажіть нам, що сталось

      без комісії Одеська, 27 — Продається будинок

      (с. Вита-Почтовая, Киево-Святошинский район)

      72000 $

      Загальна площа: 130 кв.м

      Площа ділянки: 3 сот

      Кімнат: 4

      К-ть поверхів: 2

      Продаж БЕЗ КОМІСІЇ Віта-Поштова Новий 2пов будинок 130квм
      Продається новий 2 поверховий будинок площею 130квм с земельною
      ділянкою 3,6 сотки під будівництво житлового будинку,кадастровий номер:3222481201:01:005:5114 .Закрита теріторія на 4 будинки.Від Києва 8 км по Одеський трасі!В продажу залишився останній будинок!
      Затишне мальовниче місце для життя та відпочинку- 200 метрів від лісу. Зручний виїзд на Одеську трасу. Зупинка маршруток на Київ 10 хвилин пішки.
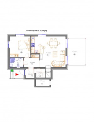
      Загальна площа-130квм, житлова-90квм, тераса-16квм.
      На першому поверсі кухня-вітальня-31 квм,житлова кімната-14квм,санвузол,комора.
      З кухні-вітальні виход на терасу та ділянку площею 250квм,на який можно влаштувати барбекю, садок чи город.
      На другому поверсі 2 просторі кімнати з панорамними вікнами-21 квм та 24квм та санвузол.
      Є свердлвина та септик з переливом.
      Поблизу знаходиться вся необхідна інфраструктура:дитсадок, школа,магазини Сільпо,Фора,Нова пошта,ресторани, отель "Шале" та "Вілла-Віта", новий дитячий футбольний клуб,спортивний майданчик,озеро, пляж!Гарна альтернатива одно чи двокімнатній квартирі в багатоквартирному будинку!
      Ціна 72000 доларів Без комісії для покупця!Тел.067 951 44 40 Наталія Співпрацюю з рієлторами без дублювання в рекламі

      Надіслати скаргу

      Закрити
      Поскаржитися на об'єкт «Одеська, 27 (с. Вита-Почтовая, Киево-Святошинский район)»
      Ваш коментар:(Необов'язково)
      Ваша скарга буде надіслана ріелтору, що розмістив об'єкт, а також адміністрації сайту АФНУ.
      Ваше ім'я:
      (Обов'язково)
      Ваш e-mail для відповіді:
      (Обов'язково)

      Коментарі