Вхід на сайт

Ел. пошта:
Пароль:

Реєстрація на сайті

Призвіще: Область:
Ім'я: Населений пункт:
    По батькові: Номер телефону:
    Ел. пошта: Компанія:
      Пароль: Посада:
      Повторіть пароль: Рік початку роботи:
      Фото:
      З правилами розміщення об'єктів погоджуюсь

      Забули пароль?

      Вкажіть ел. пошту — ми надішлемо Вам новий пароль для входу
      Ел. пошта:

      Проблема на сайті

      Закрити
      Ваш e-mail:
      (необов'язково)
      Розкажіть нам, що сталось

      без комісії Рівненська, 4 — Продається торгівельний майданчик

      (г. Луцк)

      62000 $

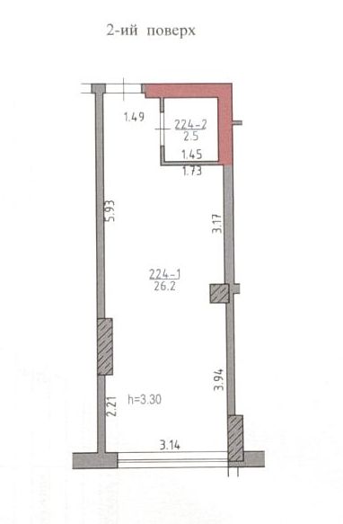
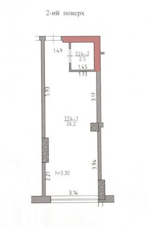
      Загальна площа: 29 кв.м

      Поверх: 1

      К-ть поверхів: 2

      Продаж комерційного приміщення в ЖК "Kyiv Sky"

      РОЗТАШУВАННЯ: м. Луцьк, вул. Рівненська, 4. Розвинена інфраструктура, поруч: аптека, магазин побутової хімії, продуктовий магазин, зупинки громадського транспорту, пошта. Активний автомобільний, пішохідний трафік. Зручна транспортна розв'язка. Фасадне приміщення.

      ХАРАКТЕРИСТИКИ:
      - площа: 29 м.кв.
      - відкрите планування
      - 2-ий поверх, ліфт
      - висота стелі: 330см.
      - спільний вхід
      - свій санвузол
      - можливість розміщення рекламної вивіски
      - парковка на більше 12 місць
      - великі вікна

      КОМУНІКАЦІЇ:
      - електроенергія: лічильник
      - автономне опалення
      - водопостачання
      - природня вентиляція

      Вартість продажу - 62 000 дол. (Без комісії для покупця)

      менеджер об'єкту
      Ольга Синиця
      095 805 1772

      Надіслати скаргу

      Закрити
      Поскаржитися на об'єкт «Рівненська, 4 (г. Луцк)»
      Ваш коментар:(Необов'язково)
      Ваша скарга буде надіслана ріелтору, що розмістив об'єкт, а також адміністрації сайту АФНУ.
      Ваше ім'я:
      (Обов'язково)
      Ваш e-mail для відповіді:
      (Обов'язково)

      Коментарі