Вхід на сайт

Ел. пошта:
Пароль:

Реєстрація на сайті

Призвіще: Область:
Ім'я: Населений пункт:
    По батькові: Номер телефону:
    Ел. пошта: Компанія:
      Пароль: Посада:
      Повторіть пароль: Рік початку роботи:
      Фото:
      З правилами розміщення об'єктів погоджуюсь

      Забули пароль?

      Вкажіть ел. пошту — ми надішлемо Вам новий пароль для входу
      Ел. пошта:

      Проблема на сайті

      Закрити
      Ваш e-mail:
      (необов'язково)
      Розкажіть нам, що сталось

      без комісії ул. Горького — Продається будинок

      (г. Зиньков, Зеньковский район)

      22000 $

      Загальна площа: 67.2 кв.м

      Площа ділянки: 20 сот

      Кімнат: 4

      К-ть поверхів: 1

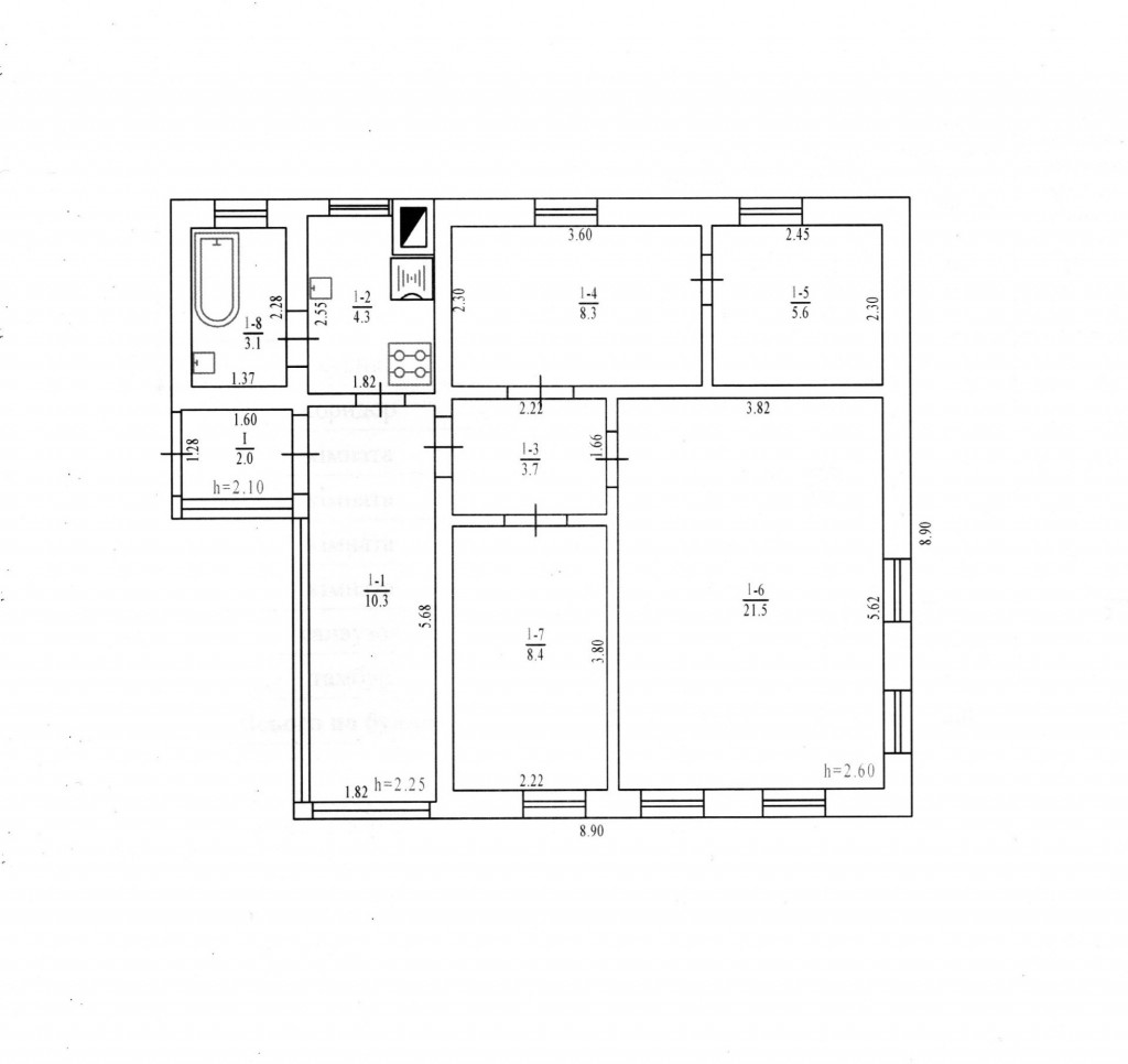
      Продаж домоволодіння в м. Зіньків, в Полтавській області, Полтавський район, Зінківська територіальна громада по провулку Горького, розташованого на земельній ділянці 20 соток (у власності)

      Характеристика та опис:
      --Житловий будинок (1982 року побудови):
      - загальною площею 67,2 м2 на 4 житлові кімнати;
      - житловою площею 43,8 м2;
      - кухня-столова площею 14,6 м2;
      - матеріал стін- саман обкладений цеглою, покрівля- залізо, перекриття- дерев’яне, зовнішнє оздоблення- шпаклівка, вікна- металопластикові, ролети;
      - внутрішня висота кімнат Н=2,6м.;
      - санвузол- сумісний;
      - автономне водяне опалення та гаряче водопостачання- двоконтурний газовий котел;

      -- Комунікації:
      - колодязь питний;
      - централізоване міське водопостачання;
      - водовідведення- септик;
      - природний газ;
      - електропостачання;
      - провідний телефон та Інтернет

      -- Літня кухня;
      -- Сарай;
      -- Гараж;
      -- Погріб
      Поруч знаходиться:
      -- сосновий ліс, в межах 500 м
      -- річка Ташань, в межах 1,5 км
      -- гідрологічний заказник «Пеленківщина»
      -- санаторій «Сосновий бір», в межах 5 км

      Вартість домоволодіння: $22000+ нотаріальне оформлення
      - без комісійних АН

      Надіслати скаргу

      Закрити
      Поскаржитися на об'єкт «ул. Горького (г. Зиньков, Зеньковский район)»
      Ваш коментар:(Необов'язково)
      Ваша скарга буде надіслана ріелтору, що розмістив об'єкт, а також адміністрації сайту АФНУ.
      Ваше ім'я:
      (Обов'язково)
      Ваш e-mail для відповіді:
      (Обов'язково)

      Коментарі